Home
About
Our Work
Resources
New Home Warranty
Choosing a Builder
Project Management
Testimonials
Floor Plans
Contact
Home
About
Our Work
Resources
Project Management
Testimonials
Floor Plans
Contact
Floor Plans
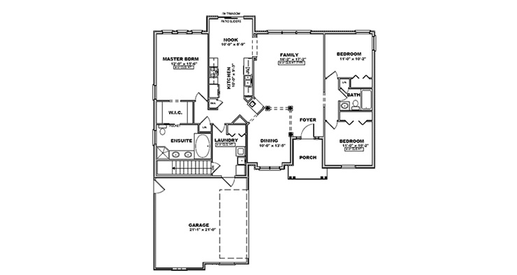
The Manchester
Download
Back
Mastroianni Construction "In-House Integrity Warranty"
Details